Как я себе дом строил. Дневник. Часть вторая. Годы 2015 и 2016.

[ Версия для печати ]
Добавить в Telegram Добавить в Twitter Добавить в Вконтакте Добавить в Одноклассники
Страницы: (20) « Первая ... 11 12 [13] 14 15 ... Последняя »  К последнему непрочитанному [ ОТВЕТИТЬ ] [ НОВАЯ ТЕМА ]
garry1979
22.11.2016 - 08:49
1
Статус: Offline


Ярила

Регистрация: 24.07.11
Сообщений: 1138
Цитата (zankl @ 22.11.2016 - 08:39)
Цитата (garry1979 @ 22.11.2016 - 08:31)
Заливать буду с миксера в 2 приема ( у меня гостиная и кухня разделены демпфером, как и все дверные проемы) первый этап - санузел, спальня, детская, котельная, кухня. Второй - гостиная. Да, заливать тачками через дверной проем.

Окнами меня уже в первой теме затыкали)

Место у меня просто отличное!!! Тишина... Воздух.... До центра города мне 15 минут на машине. Остановка автобуса в 400 метрах, платформа электрички в 2,5 километрах.

Не прочитал первую тему пока))) Если про окна говорили, то звиняй ТС. Единственно , чтобы посоветовал-укрепи шурупами MRS, по 3 на каждую сторону, это сделать можно и сейчас.
По поводу подоконника прав я?
Если нужна помощь в регулировке, подскажу что и как. Створки стопудово просядут через год, если уже не просели. Там все просто, разберешся)))

по поводу подоконника прав) нижний профиль выгнулся вверх миллиметра на 3-4, хотя снизу я не пенил. Еще подоконный профиль вместо 3 см оказался 2,7. А подоконники я все сделал три. Короче, поимел гемора с втыканием, так, что аж кромку обломал, уже писал выше про этот косяк. Короче, просто профиль шлифанул, подровнял, без переустановки окна.
Регулировку знаю, створочка за полтора года ни одна даже не цепляет ни за что, открытие-закрытие бесшумное, мягкое и плотное. Заказывал у производителя, с которым работаю уже лет 8. Хороший профиль и фурнитура

Это сообщение отредактировал garry1979 - 22.11.2016 - 08:51
 
[^]
Gban4ik
22.11.2016 - 08:52
-2
Статус: Offline


Приколист

Регистрация: 4.10.13
Сообщений: 290
Блин все круто, но проводка на скрутках через зажим СИЗ. Ну как так-то?? Ну есть же Wago. Блин ну не понимаю я, для себя ведь делаешь!!
 
[^]
Игорек17
22.11.2016 - 08:53
0
Статус: Offline


Приколист

Регистрация: 11.10.16
Сообщений: 273
Молодец с большой буквы!
F 5 сломал но оно того стоило.
 
[^]
СоленыеУши
22.11.2016 - 08:54
1
Статус: Offline


Ярила

Регистрация: 2.06.11
Сообщений: 2054
Цитата (garry1979 @ 22.11.2016 - 10:31)
Заливать буду с миксера в 2 приема ( у меня гостиная и кухня разделены демпфером, как и все дверные проемы) первый этап - санузел, спальня, детская, котельная, кухня. Второй - гостиная. Да, заливать тачками через дверной проем.

Окнами меня уже в первой теме затыкали)

Место у меня просто отличное!!! Тишина... Воздух.... До центра города мне 15 минут на машине. Остановка автобуса в 400 метрах, платформа электрички в 2,5 километрах.

Ну то что от центра города близко и лес это огромный плюс, беру свои слова обратно, на счет неудачного места.

У нас в милионнике таких мест нет, либо земля стоит от ляма за сотку, что мне не по силам в принципе. Но мне отсутствие леса компенсирует школа и садик под боком, да и магазы, в том числе круглосуточные, т.к. я алкоголик :)
 
[^]
Sergun300
22.11.2016 - 09:11
0
Статус: Offline


Приколист

Регистрация: 27.09.15
Сообщений: 212
Цитата (garry1979 @ 22.11.2016 - 08:31)
...

Место у меня просто отличное!!! Тишина... Воздух.... До центра города мне 15 минут на машине. Остановка автобуса в 400 метрах, платформа электрички в 2,5 километрах.

Город то какой ????
 
[^]
Malchik777
22.11.2016 - 09:14
0
Статус: Offline


Шутник

Регистрация: 1.11.16
Сообщений: 47
Все очень даже хорошо! По отоплению пару моментов: В котельной должно быть окно минимум размер 40х40см с открытием, объем котельной 15м3 помню такие данные когда себе делал, но это в Татарстане, может у вас не так. И по теплому полу момент- под трубу надо стелить фольгаизолон или просто фольгу, это для того чтобы тепло шло только вверх, а так будет весь бетон греть и расход больше на отопление. Это не с башки взято, ходил целый месяц на курсы по отоплению и теплопроводности в Университет, там умные дятьки объясняли.)))
 
[^]
Chimgan
22.11.2016 - 09:22
1
Статус: Offline


Ярила

Регистрация: 10.07.13
Сообщений: 2683
Прямо как свои стены увидел. Тоже развлекаюсь.

Как я себе дом строил. Дневник. Часть вторая. Годы 2015 и 2016.
 
[^]
Chimgan
22.11.2016 - 09:22
-1
Статус: Offline


Ярила

Регистрация: 10.07.13
Сообщений: 2683
02
2Malchik777 - дядьки не говорили что цемент разъедает "обычный" фольгоизол.
А 100 мм XPS достаточно чтобы не греть перекрытие.

Это сообщение отредактировал Chimgan - 22.11.2016 - 09:26

Как я себе дом строил. Дневник. Часть вторая. Годы 2015 и 2016.
 
[^]
Chimgan
22.11.2016 - 09:23
5
Статус: Offline


Ярила

Регистрация: 10.07.13
Сообщений: 2683
ТСу вопрос . Высота блока надеюсь НЕ 250 ?

Как я себе дом строил. Дневник. Часть вторая. Годы 2015 и 2016.
 
[^]
vokz
22.11.2016 - 09:24
0
Статус: Offline


Шутник

Регистрация: 31.07.14
Сообщений: 61
Цитата (Malchik777 @ 22.11.2016 - 09:14)
Все очень даже хорошо! По отоплению пару моментов: В котельной должно быть окно минимум размер 40х40см с открытием, объем котельной 15м3 помню такие данные когда себе делал, но это в Татарстане, может у вас не так. И по теплому полу момент- под трубу надо стелить фольгаизолон или просто фольгу, это для того чтобы тепло шло только вверх, а так будет весь бетон греть и расход больше на отопление. Это не с башки взято, ходил целый месяц на курсы по отоплению и теплопроводности в Университет, там умные дятьки объясняли.)))

Прошу прощения,у ТС пол на пеноплексе(сам так же делал),у которого теплопроводность 0,03 ВТ*м*0С, т.е. минимальна.Смысла я не увидел в подложке,да и по затратам накладно будет на пеноплекс кидать подложку.Пленку конечно надо было на пеноплекс кинуть,что бы при заливке стяжки молоко не убёгло lol.gif .
Хотя ХЗ,я по грунту делал пола,на песчаную утрамбованную подушку...
 
[^]
DimaDima
22.11.2016 - 09:26
0
Статус: Offline


Весельчак

Регистрация: 30.12.13
Сообщений: 178
Бро, ты очень крутой )
 
[^]
SandPG
22.11.2016 - 09:35
0
Статус: Offline


Ярила

Регистрация: 16.01.11
Сообщений: 1095
У меня слов нет. Это супер круто! Аплодирую стоя!
 
[^]
elDmitriy
22.11.2016 - 09:37
1
Статус: Offline


пошутист-парашютист

Регистрация: 14.03.16
Сообщений: 1859
Цитата (garry1979 @ 22.11.2016 - 00:48)
67. Все проводульки проходят через стену на веранду, там будет встроенный распределительный щиток на 18 групп.

что-то мало 18 групп. я сейчас ремонт в двушке 40 кв.м. делаю, так у меня щиток в 24 модуля занят полностью и из-за этого пришлось ограничивать хотелки и мучиться с проводами. всего-то поставил счетчик, вводной двухполюсный автомат, АЗМ, УЗО на розетки в комнату и зал, 3 автомата на розетки зал, спальня, кухня, 3 автомата на освещение комната, зал кухня, один автомат на освещение и розетки коридор+санузел (первое сокращение хотелок, хотел коридор и санузел хотя бы на два разных автомата повесить, не говоря уже о разделении освещения и розеток), УЗО на санузел и коридор, дифавтомат на варочную панель и духовку (второе сокращение, хотел так же автомат и УЗО), отдельно автомат на светодиодную подсветку в спальне. и все, даже резерва нет. а автор дом двухэтажный делает на 18 модулях.... я бы не меньше 36 элементов поставил, благо место есть
 
[^]
dvin32
22.11.2016 - 09:40
0
Статус: Offline


Весельчак

Регистрация: 11.10.15
Сообщений: 178
Все очень круто! По лестнице - внешняя тетива слабая, будет дребезжать (вибрировать) при ходьбе. Имхо, лучше дуб. Намного лучше.
 
[^]
garry1979
22.11.2016 - 09:40
0
Статус: Offline


Ярила

Регистрация: 24.07.11
Сообщений: 1138
Цитата (elDmitriy @ 22.11.2016 - 09:37)
Цитата (garry1979 @ 22.11.2016 - 00:48)
67. Все проводульки проходят через стену на веранду, там будет встроенный распределительный щиток на 18 групп.

что-то мало 18 групп. я сейчас ремонт в двушке 40 кв.м. делаю, так у меня щиток в 24 модуля занят полностью и из-за этого пришлось ограничивать хотелки и мучиться с проводами. всего-то поставил счетчик, вводной двухполюсный автомат, АЗМ, УЗО на розетки в комнату и зал, 3 автомата на розетки зал, спальня, кухня, 3 автомата на освещение комната, зал кухня, один автомат на освещение и розетки коридор+санузел (первое сокращение хотелок, хотел коридор и санузел хотя бы на два разных автомата повесить, не говоря уже о разделении освещения и розеток), УЗО на санузел и коридор, дифавтомат на варочную панель и духовку (второе сокращение, хотел так же автомат и УЗО), отдельно автомат на светодиодную подсветку в спальне. и все, даже резерва нет. а автор дом двухэтажный делает на 18 модулях.... я бы не меньше 36 элементов поставил, благо место есть

групп (пока) 18. А щиток да, на 36 мест буду брать, хотел 24, потом понял, что маловато будет, если на будущее гараж подключать, освещение территории, автоматические ворота и т.п.
 
[^]
serj10
22.11.2016 - 09:43
0
Статус: Offline


Приколист

Регистрация: 28.02.13
Сообщений: 369
ТС терпения удачи и денег на строительство!!! В одиночку херачит, а это писец как трудно, по себе знаю.
 
[^]
garry1979
22.11.2016 - 09:44
4
Статус: Offline


Ярила

Регистрация: 24.07.11
Сообщений: 1138
Цитата (Chimgan @ 22.11.2016 - 09:23)
ТСу вопрос . Высота блока надеюсь НЕ 250 ?

Заметил же)))). Высота 250. Этой перемычки уже нет, она была при временной лестнице, когда лестницу вычерчивал, переделал это место. Приходилось наклоняться при подъеме
 
[^]
AFA
22.11.2016 - 09:52
2
Статус: Offline


Ярила

Регистрация: 10.07.14
Сообщений: 14037
Цитата
02
2Malchik777 - дядьки не говорили что цемент разъедает "обычный" фольгоизол.


Гоните блядек ссанными тряпками в школу на урок физики и химии.
1. 5-10 микрон напыленной фольги "съедаеться" в процессе гидратации ЦПС.
2. Даже если и не съедаеться, то при температуре ТП максимум 40 *С составляющая лучистой энергии менее 3%, что меньше погрешности расчетов.
3. Не Пеноплекс, ЭППС ТН Карбон. Приведенное около трех единиц.
 
[^]
kosharik63
22.11.2016 - 09:56
0
Статус: Offline


Шутник

Регистрация: 27.02.15
Сообщений: 71
Молодец, руки золотые!
 
[^]
psytrance
22.11.2016 - 09:56
4
Статус: Offline


Ярила

Регистрация: 30.07.13
Сообщений: 8001
Почитал, посмотрел. Что-то у меня желание отпало продолжать своё строительство.
:(
 
[^]
AFA
22.11.2016 - 09:58
0
Статус: Offline


Ярила

Регистрация: 10.07.14
Сообщений: 14037
Перичитал первую тему.
Вопросы ТС:
1. МЗЛ со сваями?
2. Плиты обрезали?
3. Коротоп проклеивали на весу? Нахлест сверху?
 
[^]
JJHH
22.11.2016 - 09:59
1
Статус: Offline


Ярила

Регистрация: 1.04.12
Сообщений: 1344
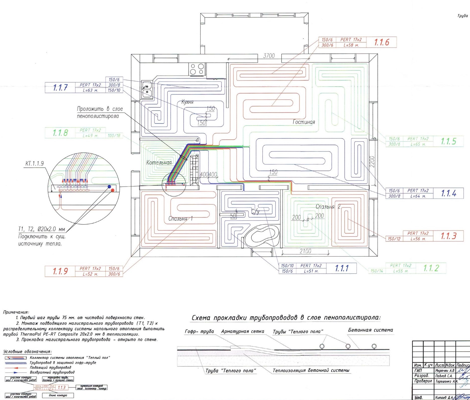
А меня проект раскладки теплого пола очень смутил.
http://s00.yaplakal.com/pics/pics_original/9/0/1/8779109.jpg Вроде везде пишут: укладывать надо параллельно подающую и обратку, а не кольцом, как во многих контурах проекта. Вот так.

Это сообщение отредактировал JJHH - 22.11.2016 - 10:01

Как я себе дом строил. Дневник. Часть вторая. Годы 2015 и 2016.
 
[^]
elDmitriy
22.11.2016 - 10:04
1
Статус: Offline


пошутист-парашютист

Регистрация: 14.03.16
Сообщений: 1859
Цитата (garry1979 @ 22.11.2016 - 12:40)
групп (пока) 18. А щиток да, на 36 мест буду брать, хотел 24, потом понял, что маловато будет, если на будущее гараж подключать, освещение территории, автоматические ворота и т.п.

бери больше! либо щиток глубже. у меня в щиток заходит всего 4 ВВГ 2*1,5 (освещение), 5 ВВГ 3*2,5 (розетки) и 1 ВВГ 3*4 (духовка). так мне не удалось красиво уложить провода, получилась такая херня, что кровавыми слезами плачу, когда смотрю на результат.
а на гараж и прочее, думаю, лчуше от щитка на столбе кабель отдельно пустить. либо на 32А автомат резерв сделать с выводом кабеля. отделить, так сказать, мух от котлет
 
[^]
Sunray
22.11.2016 - 10:08
1
Статус: Offline


Ч Е Л О В Е К

Регистрация: 23.11.09
Сообщений: 10463
а у меня фундамент залит в этом году только))стройка в следующем))сейчас занимаюсь бумажками)

ТС молодец, зелень
 
[^]
karpa4o
22.11.2016 - 10:13
1
Статус: Offline


Шутник

Регистрация: 18.11.16
Сообщений: 14
agree.gif прямо крутейшая стройка. Петрушки тебе пожизненно
 
[^]
Понравился пост? Еще больше интересного в Телеграм-канале ЯПлакалъ!
Только зарегистрированные и авторизованные пользователи могут оставлять комментарии. Авторизуйтесь, пожалуйста, или зарегистрируйтесь, если не зарегистрированы.
1 Пользователей читают эту тему (1 Гостей и 0 Скрытых Пользователей) Просмотры темы: 105500
0 Пользователей:
Страницы: (20) « Первая ... 11 12 [13] 14 15 ... Последняя » [ ОТВЕТИТЬ ] [ НОВАЯ ТЕМА ]


 
 



Активные темы






Наверх